グランドハイツ高田壱番館 草津の1LDK賃貸マンション!|センチュリー21sublime

SHARE!

Instagram TikTok line Facebook
来店予約 ネットで
来店予約
TOPページ
物件検索
草津市の賃貸情報一覧
草津の賃貸情報一覧
グランドハイツ高田壱番館 草津の1LDK賃貸マンション!

グランドハイツ高田壱番館 草津の1LDK賃貸マンション 

  • 7.8万円 / 管理費: - / 共益費:3,000円
  • 間取り:1LDK / 専有面積:54.27m2
  • 敷金:10万円 / 礼金:5万円 / 保証金:0ヶ月 / 敷引:0ヶ月
【建物外観】 
  • 【建物外観】 
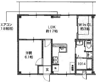
  • 【間取】 
  • 【キッチン】 
  • 【バス】 
  • 【洗面所】 
  • 【トイレ】 
  • 【その他】 
  • 【収納】 
  • 【玄関】 
  • 【バルコニー】 
  • 【セキュリティ】 
  • 【眺望】 
  • 【その他】 
  • 【その他設備】 
  • 【セキュリティ】 
  • 【その他設備】 
  • 【洗面所】 
  • 【その他】 
  • 【居室・リビング】 
  • 【その他部屋・スペース】 
  • 【居室・リビング】 

【グランドハイツ高田壱番館についてスタッフからのイチオシポイント!】

草津駅徒歩10分★17帖の広々LDK★ウォークインクローゼット付★
グランドハイツ高田壱番館は滋賀県草津市野村1丁目【JR東海道・山陽本線 草津駅徒歩10分】にある1LDK賃貸マンションです。
1998年3月築の3階建てのマンションで、お部屋は3階建ての2階部分です。
物件の広さは54.27m2で人気の1LDKです。
※お部屋のもっと詳しい内容や入居時期、諸条件のご相談など、ホームページには掲載が間に合わず載せきれていない情報もございます。
気になることが御座いましたらお気軽にメールにてお問い合わせください。
077-516-1877
センチュリー21sublime草津駅前店
お問い合わせNO:RHS-170301-33651c

物件基本情報

所在地 滋賀県草津市野村1丁目   周辺MAP
交通 JR東海道・山陽本線 「草津駅」 徒歩10分
JR東海道・山陽本線 「栗東駅」 徒歩42分
JR東海道・山陽本線 「南草津駅」 徒歩43分
JR草津線 「手原駅」 徒歩59分
種別 / 構造 マンション / S造(鉄骨造) 主要採光面 南西 所在階 / 階数 2階 / 3階
築年月 1998年3月  間取り 1LDK( LDK17畳/洋室6.1畳 ) 専有面積 54.27m2

物件詳細情報

損保 要 20,000円/2年  更新料 鍵交換代 -
駐車場 あり7,700円 近隣駐車場   契約期間
借家区分
2年 -
現況 空家 入居可能日 即入居可 取引態様 媒介
保証人代行会社 仲介手数料 バイク置き場
他初期費用
町費 400.0円 更新事務手数料 16500.0円   

設備詳細情報

キッチン
  • システムキッチン
  • L字型キッチン
  • グリル付
  • ガスコンロ対応
  • 3口以上コンロ
バス・トイレ
  • 給湯
  • バストイレ別
  • シャワー
  • 脱衣所
  • 洗面所独立
  • 洗面台
  • 洗面所にドア
  • バス専用
  • トイレ専用
住空間
  • 角部屋
  • バルコニー
  • リノベーション
  • 南西向き
  • エアコン2台
設備・サービス
  • クロゼット
  • 押入
  • シューズボックス
  • 全居室収納
  • ウォークインクロゼット
  • クロゼット2ヶ所
  • TVインターホン
  • 駐輪場
  • ネット専用回線
  • 電子キー
特 徴
  • 陽当り良好
  • 閑静な住宅地
  • 緑豊かな住宅地
  • 駅まで平坦
  • 駅徒歩10分以内
  • 通風良好
条件・その他  ガス:都市 / 水道:公営 / 排水:下水
コメント 草津駅徒歩10分★17帖の広々LDK★ウォークインクローゼット付★
備 考 更新料:無 更新事務手数料:16500円 町費:400円 火災保険:20000円(2年) 事業用相談可

学区情報

小学校区
()
中学校区
()
情報更新日:2026年04月17日 次回更新予定日:2026年05月01日
※各種情報と差異がある場合は現況優先となります
※物件情報の学区情報について
当サイト物件情報に記載されております通学区域(学区)情報は、国土数値情報ダウンロードサービスが提供する小学校区データ【2016年度】及び中学校区データ【2016年度】を元に加工したものですので、記載情報が現在の学区域と異なる場合がございます。国土数値情報ダウンロードサービスのWEBサイト上で記述通り、データは必ずしも正確とは言えません。また、通学区域(学区)は毎年見直しの対象となりますので、そちらを踏まえ学区情報は参考としてご活用下さい。

近隣スポット情報

こちらの物件の空室状況

所在階 / 部屋番号 賃料 共益費 / 管理費 間取り 専有面積 敷金 礼金 お気に入り 物件詳細
205 7.8万円 3,000円 / - 1LDK 54.27m2 10万円 5万円 お気に入り 物件詳細
205 7.8万円 3,000円 / - 1LDK 54.27m2 10万円 5万円 お気に入り 物件詳細
205 7.8万円 3,000円 / - 1LDK 54.27m2 10万円 5万円 お気に入り 物件詳細
077-516-1877
センチュリー21sublime草津駅前店
お問い合わせNO:RHS-170301-33651c

この物件に似た物件をチェック!

  • 賃貸マンション 7万円

    栗東駅 徒歩10分

    2LDK(60.50u)

    【プチリノベ実施!】★栗東駅まで徒歩10分♪オール電化のコンクリート造2LDK★

  • 賃貸マンション 7.2万円

    草津駅 徒歩18分

    1LDK(46.72u)

    ★インターネット無料!お洒落なオートロック付き築浅物件★出ました人気物件!栗東市ですが草津駅エリアです!スーパーも徒歩圏内で、嬉しいシステムキッチン・エアコン付き♪

  • 賃貸マンション 6.99万円

    草津駅 徒歩6分

    ワンルーム(29.58u)

    ☆ネット無料!駅徒歩圏内!広々居室の単身様用物件登場です☆

  • 賃貸マンション 7.2万円

    草津駅 徒歩20分

    1LDK(42.63u)

    インターネット無料★草津駅徒歩20分★生活に便利な設備も充実★


閲覧した物件の履歴

閲覧した物件の一覧を見る

最近検索した条件一覧



気になったら今すぐ!カンタンお問合せ



お問合せ内容必須
【備考欄】
希望条件・来店希望日・その他質問がございましたらご記入ください。
お客様情報
お名前必須
連絡先必須


※ご記入いただいたメールアドレス宛てに、お問合せ内容の確認メールをお送りいたします。
※Yahoo!メールなどのフリーメールをご利用の場合、迷惑メールフォルダに入る場合があります。
 迷惑メールのフォルダ・設定等をご確認下さい。
メールアドレス
電話番号
FAX(任意)



プライバシーポリシーを必ずご確認ください。内容に同意の上、確認画面へお進みください。

 


▲ページのTOPへ戻る


お問合せはこちら

センチュリー21sublime草津駅前店 077-516-1877