ウエストコミタリア1 瀬田の1K賃貸アパート!|センチュリー21sublime

SHARE!

Instagram TikTok line Facebook
来店予約 ネットで
来店予約
TOPページ
物件検索
大津市の賃貸情報一覧
瀬田の賃貸情報一覧
ウエストコミタリア1 瀬田の1K賃貸アパート!

ウエストコミタリア1 瀬田の1K賃貸アパート 

  • 5.8万円 / 管理費: - / 共益費:5,000円
  • 間取り:1K / 専有面積:28.16m2
  • 敷金:5万円 / 礼金:10万円 / 保証金:0ヶ月 / 敷引:0ヶ月
【建物外観】 
  • 【建物外観】 
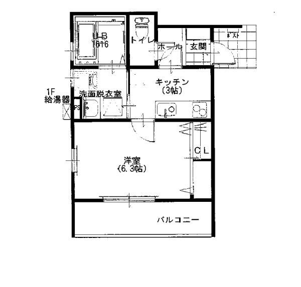
  • 【間取】 
  • 【キッチン】 
  • 【バス】 
  • 【洗面所】 
  • 【トイレ】 
  • 【その他】 
  • 【収納】 
  • 【玄関】 
  • 【バルコニー】 
  • 【駐車場】 
  • 【セキュリティ】 
  • 【エントランス】 
  • 【その他設備】 
  • 【収納】 
  • 【居室・リビング】 
  • 【その他】 
  • 【眺望】 
  • 【居室・リビング】 

【ウエストコミタリア1についてスタッフからのイチオシポイント!】

瀬田駅徒歩16分★バスユニット1坪★お一人暮らしに最適空間♪
ウエストコミタリア1は滋賀県大津市大萱5丁目【JR東海道・山陽本線 瀬田駅徒歩16分】にある1K賃貸アパートです。
2020年12月築の2階建てのアパートで、お部屋は2階建ての2階部分です。
物件の広さは28.16m2で人気の1Kです。
※お部屋のもっと詳しい内容や入居時期、諸条件のご相談など、ホームページには掲載が間に合わず載せきれていない情報もございます。
気になることが御座いましたらお気軽にメールにてお問い合わせください。
077-516-1877
センチュリー21sublime草津駅前店
お問い合わせNO:RHS-170301-33630c

物件基本情報

所在地 滋賀県大津市大萱5丁目   周辺MAP
交通 JR東海道・山陽本線 「瀬田駅」 徒歩16分
JR東海道・山陽本線 「石山駅」 徒歩32分
京阪石山坂本線 「京阪石山駅」 徒歩32分
京阪石山坂本線 「唐橋前駅」 徒歩34分
種別 / 構造 アパート / 木造 主要採光面 - 所在階 / 階数 2階 / 2階
築年月 2020年12月  間取り 1K( K3畳/洋室6.3畳 ) 専有面積 28.16m2

物件詳細情報

損保 要 20,000円/2年  更新料 鍵交換代 22,000円
駐車場 あり5,500円 近隣駐車場   契約期間
借家区分
2年 -
現況 空き予定 入居可能日 2026年5月中旬 取引態様 媒介
保証人代行会社 全保連 50.0% 初回:賃料等額の50% 1年毎:13000円 仲介手数料 バイク置き場
他初期費用
更新事務手数料/2年 22000.0円 自治会費/月 600.0円   

設備詳細情報

キッチン
  • システムキッチン
バス・トイレ
  • バストイレ別
  • シャワー
  • 追焚機能浴室
  • 脱衣所
  • 洗面所独立
  • 洗面台
  • 温水洗浄便座
  • 洗面所にドア
  • 洗面所
  • バス専用
  • トイレ専用
住空間
  • 最上階
  • バルコニー
  • フローリング
  • 照明付き
  • エアコン
設備・サービス
  • 収納
  • 床下収納
  • TVインターホン
  • 宅配ボックス
  • 敷地内ごみ置き場
  • 駐輪場
  • BS
  • 防犯カメラ
  • ネット使用料不要
  • 平面駐車場
特 徴
  • 閑静な住宅地
  • 緑豊かな住宅地
  • 通風良好
条件・その他  ガス:都市 / 水道:公営 / 排水:下水 / 保証人代行:必加入
コメント 瀬田駅徒歩16分★バスユニット1坪★お一人暮らしに最適空間♪
備 考 HC代:33000円
鍵交換代:22000円
自治会費:600/月
更新事務手数料:22000円/2年

学区情報

小学校区 大津市立瀬田北小学校
(滋賀県大津市)
中学校区 瀬田北中学校
(滋賀県大津市)
情報更新日:2026年04月14日 次回更新予定日:2026年04月28日
※各種情報と差異がある場合は現況優先となります
※物件情報の学区情報について
当サイト物件情報に記載されております通学区域(学区)情報は、国土数値情報ダウンロードサービスが提供する小学校区データ【2016年度】及び中学校区データ【2016年度】を元に加工したものですので、記載情報が現在の学区域と異なる場合がございます。国土数値情報ダウンロードサービスのWEBサイト上で記述通り、データは必ずしも正確とは言えません。また、通学区域(学区)は毎年見直しの対象となりますので、そちらを踏まえ学区情報は参考としてご活用下さい。

近隣スポット情報

こちらの物件の空室状況

所在階 / 部屋番号 賃料 共益費 / 管理費 間取り 専有面積 敷金 礼金 お気に入り 物件詳細
201 5.8万円 5,000円 / - 1K 28.16m2 5万円 10万円 お気に入り 物件詳細
201 5.8万円 5,000円 / - 1K 28.16m2 5万円 10万円 お気に入り 物件詳細
201 5.8万円 5,000円 / - 1K 28.16m2 5万円 10万円 お気に入り 物件詳細
201 5.8万円 5,000円 / - 1K 28.16m2 5万円 10万円 お気に入り 物件詳細
077-516-1877
センチュリー21sublime草津駅前店
お問い合わせNO:RHS-170301-33630c

この物件に似た物件をチェック!

  • 賃貸アパート 5万円

    瀬田駅 徒歩15分

    2DK(45.00u)

    JR瀬田駅徒歩15分♪南向きバルコニーで日当たり良好★

  • 賃貸アパート 6万円

    瀬田駅 徒歩23分

    2LDK(49.60u)

    敷金礼金ゼロ☆プロバイダー料金のみでネット利用可☆室内内見可

  • 賃貸アパート 5.3万円

    瀬田駅 徒歩19分

    2DK(44.71u)

    瀬田駅徒歩18分★ガスコンロ・エアコン・居室LED照明付き★即入居可★

  • 賃貸アパート 5万円

    瀬田駅 徒歩15分

    2DK(45.00u)

    JR瀬田駅徒歩15分♪南向きバルコニーで日当たり良好★


閲覧した物件の履歴

閲覧した物件の一覧を見る

最近検索した条件一覧



気になったら今すぐ!カンタンお問合せ



お問合せ内容必須
【備考欄】
希望条件・来店希望日・その他質問がございましたらご記入ください。
お客様情報
お名前必須
連絡先必須


※ご記入いただいたメールアドレス宛てに、お問合せ内容の確認メールをお送りいたします。
※Yahoo!メールなどのフリーメールをご利用の場合、迷惑メールフォルダに入る場合があります。
 迷惑メールのフォルダ・設定等をご確認下さい。
メールアドレス
電話番号
FAX(任意)



プライバシーポリシーを必ずご確認ください。内容に同意の上、確認画面へお進みください。

 


▲ページのTOPへ戻る


お問合せはこちら

センチュリー21sublime草津駅前店 077-516-1877