プレサンス大津京町ヴェリス 大津の1DK賃貸マンション!|センチュリー21sublime

SHARE!

Instagram TikTok line Facebook
来店予約 ネットで
来店予約
TOPページ
物件検索
大津市の賃貸情報一覧
大津の賃貸情報一覧
プレサンス大津京町ヴェリス 大津の1DK賃貸マンション!

プレサンス大津京町ヴェリス 大津の1DK賃貸マンション 

  • 6.89万円 / 管理費: - / 共益費:7,600円
  • 間取り:1DK / 専有面積:26.23m2
  • 敷金:0ヶ月 / 礼金:1ヶ月 / 保証金:0ヶ月 / 敷引:0ヶ月
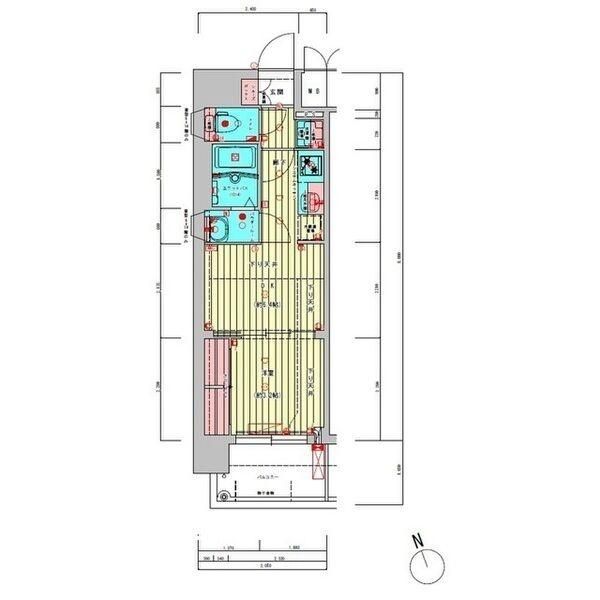
【間取】 
  • 【間取】 

【プレサンス大津京町ヴェリスについてスタッフからのイチオシポイント!】

2026年2月完成新築☆大津駅まで10分の1DK物件です
プレサンス大津京町ヴェリスは滋賀県大津市京町4丁目【JR東海道・山陽本線 大津駅徒歩8分】にある1DK賃貸マンションです。
新築築の15階建てのマンションで、お部屋は15階建ての13階部分です。
物件の広さは26.23m2で人気の1DKです。
※お部屋のもっと詳しい内容や入居時期、諸条件のご相談など、ホームページには掲載が間に合わず載せきれていない情報もございます。
気になることが御座いましたらお気軽にメールにてお問い合わせください。
077-516-1877
センチュリー21sublime草津駅前店
お問い合わせNO:RHS-170301-32418c

物件基本情報

所在地 滋賀県大津市京町4丁目   周辺MAP
交通 JR東海道・山陽本線 「大津駅」 徒歩8分
京阪石山坂本線 「石場駅」 徒歩9分
京阪京津線 「びわ湖浜大津駅」 徒歩15分
JR東海道・山陽本線 「膳所駅」 徒歩19分
種別 / 構造 マンション / RC造(鉄筋コンクリート造) 主要採光面 所在階 / 階数 13階 / 15階
築年月 新築  間取り 1DK( DK6.4畳/洋室3.2畳 ) 専有面積 26.23m2

物件詳細情報

損保 要 11,000円/1年  更新料 あり 1.1万円 鍵交換代 22,000円
駐車場 なし 近隣駐車場   契約期間
借家区分
1年 -
現況 未完成 入居可能日 2026年3月中旬 取引態様 媒介
保証人代行会社 プレサンス保証 50.0% 初回:賃料総額の50% 月額:1.5% 仲介手数料 バイク置き場
他初期費用
プレサポ24/月 990.0円     

設備詳細情報

キッチン
  • システムキッチン
バス・トイレ
  • シャワー
  • 脱衣所
  • 浴室乾燥機
  • 洗面所独立
  • 洗面台
  • 温水洗浄便座
  • 浴室未使用
  • トイレ未使用
  • 洗面所
  • バス専用
  • トイレ専用
住空間
  • バルコニー
  • 南向き
  • エアコン
設備・サービス
  • クロゼット
  • シューズボックス
  • クロゼット2ヶ所
  • オートロック
  • モニタ付オートロック
  • エレベーター
  • 宅配ボックス
  • 駐輪場
  • ネット使用料不要
  • ディンプルキー
特 徴
  • 陽当り良好
  • 2駅利用可
  • 2沿線利用可
  • 駅まで平坦
  • 駅徒歩10分以内
  • 通風良好
条件・その他  ペット:不可 / 保証人代行:必加入
コメント 2026年2月完成新築☆大津駅まで10分の1DK物件です
備 考 プレサポ990円/月
鍵調整費22000円/初回
室内清掃費38500円

学区情報

小学校区 大津市立中央小学校
(滋賀県大津市)
中学校区 打出中学校
(滋賀県大津市)
情報更新日:2026年01月12日 次回更新予定日:2026年01月26日
※各種情報と差異がある場合は現況優先となります
※物件情報の学区情報について
当サイト物件情報に記載されております通学区域(学区)情報は、国土数値情報ダウンロードサービスが提供する小学校区データ【2016年度】及び中学校区データ【2016年度】を元に加工したものですので、記載情報が現在の学区域と異なる場合がございます。国土数値情報ダウンロードサービスのWEBサイト上で記述通り、データは必ずしも正確とは言えません。また、通学区域(学区)は毎年見直しの対象となりますので、そちらを踏まえ学区情報は参考としてご活用下さい。

近隣スポット情報

こちらの物件の空室状況

所在階 / 部屋番号 賃料 共益費 / 管理費 間取り 専有面積 敷金 礼金 お気に入り 物件詳細
1308 6.89万円 7,600円 / - 1DK 26.23m2 0ヶ月 1ヶ月 お気に入り 物件詳細
1408 6.95万円 7,600円 / - 1DK 26.23m2 0ヶ月 1ヶ月 お気に入り 物件詳細
1508 7.01万円 7,600円 / - 1DK 26.23m2 0ヶ月 1ヶ月 お気に入り 物件詳細
077-516-1877
センチュリー21sublime草津駅前店
お問い合わせNO:RHS-170301-32418c

この物件に似た物件をチェック!

  • 賃貸マンション 6.7万円

    大津駅 徒歩5分

    1DK(29.48u)

    大津駅徒歩5分!オール電化☆宅配BOX・オートロック付

  • 賃貸マンション 6.9万円

    大津駅 徒歩5分

    1DK(29.48u)

    大津駅徒歩5分!オール電化☆宅配BOX・オートロック付

  • 賃貸マンション 7.2万円

    大津駅 徒歩5分

    1DK(34.27u)

    大津駅徒歩5分!オール電化☆宅配BOX・オートロック付

  • 賃貸マンション 7.1万円

    大津駅 徒歩5分

    1DK(34.27u)

    大津駅徒歩5分!オール電化☆宅配BOX・オートロック付


閲覧した物件の履歴

閲覧した物件の一覧を見る

最近検索した条件一覧



気になったら今すぐ!カンタンお問合せ



お問合せ内容必須
【備考欄】
希望条件・来店希望日・その他質問がございましたらご記入ください。
お客様情報
お名前必須
連絡先必須


※ご記入いただいたメールアドレス宛てに、お問合せ内容の確認メールをお送りいたします。
※Yahoo!メールなどのフリーメールをご利用の場合、迷惑メールフォルダに入る場合があります。
 迷惑メールのフォルダ・設定等をご確認下さい。
メールアドレス
電話番号
FAX(任意)



プライバシーポリシーを必ずご確認ください。内容に同意の上、確認画面へお進みください。

 


▲ページのTOPへ戻る


お問合せはこちら

センチュリー21sublime草津駅前店 077-516-1877