くきのビル 瀬田のその他賃貸テナント!|センチュリー21sublime

SHARE!

Instagram TikTok line Facebook
来店予約 ネットで
来店予約
TOPページ
物件検索
大津市の賃貸情報一覧
瀬田の賃貸情報一覧
くきのビル 瀬田のその他賃貸テナント!

くきのビル 瀬田のその他賃貸テナント 

  • 38.5万円 / 管理費: - / 共益費:44,000円
  • 間取り:その他 / 専有面積:224.41m2
  • 敷金:0ヶ月 / 礼金:0ヶ月 / 保証金:6ヶ月 / 敷引:0ヶ月
【建物外観】 
  • 【建物外観】 
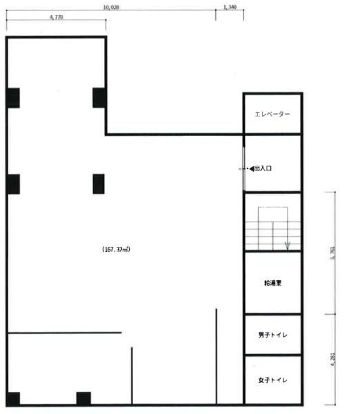
  • 【間取】 
  • 【キッチン】 
  • 【トイレ】 
  • 【洗面所】 
  • 【洗面所】 
  • 【その他設備】 
  • 【その他設備】 
  • 【セキュリティ】 
  • 【玄関】 
  • 【その他設備】 
  • 【エントランス】 
  • 【その他共有部分】 
  • 【その他共有部分】 
  • 【その他共有部分】 
  • 【その他共有部分】 
  • 【その他共有部分】 
  • 【居室・リビング】 
  • 【その他部屋・スペース】 
  • 【その他部屋・スペース】 
  • 【その他部屋・スペース】 
  • 【その他部屋・スペース】 
  • 【その他部屋・スペース】 
  • 【その他部屋・スペース】 
  • 【その他部屋・スペース】 
  • 【玄関】 
  • 【その他共有部分】 
  • 【居室・リビング】 
  • 【居室・リビング】 

【くきのビルについてスタッフからのイチオシポイント!】

瀬田駅徒歩3分☆飲食店不可☆事務所・教室等に最適☆1号線沿いで視認性◎
くきのビルは滋賀県大津市大萱1丁目【JR東海道・山陽本線 瀬田駅徒歩3分】にあるその他賃貸テナントです。
1994年10月築の4階建てのテナントで、お部屋は4階建ての4階部分です。
物件の広さは224.41m2で人気のその他です。
※お部屋のもっと詳しい内容や入居時期、諸条件のご相談など、ホームページには掲載が間に合わず載せきれていない情報もございます。
気になることが御座いましたらお気軽にメールにてお問い合わせください。
077-565-7778
センチュリー21sublime南草津駅前店
お問い合わせNO:RHS-170302-8831c

物件基本情報

所在地 滋賀県大津市大萱1丁目   周辺MAP
交通 JR東海道・山陽本線 「瀬田駅」 徒歩3分
JR東海道・山陽本線 「石山駅」 徒歩35分
京阪石山坂本線 「京阪石山駅」 徒歩36分
JR東海道・山陽本線 「南草津駅」 徒歩39分
種別 / 構造 テナント / RC造(鉄筋コンクリート造) 主要採光面 東南 所在階 / 階数 4階 / 4階
築年月 1994年10月  間取り その他( - ) 専有面積 224.41m2

物件詳細情報

損保 更新料 鍵交換代 -
駐車場 あり16,500円 近隣駐車場   契約期間
借家区分
3年 -
現況 空家 入居可能日 即入居可 取引態様 媒介
保証人代行会社 全保連 100.0% 初回:総賃料の100% 更新:総賃料の10%/年 仲介手数料 バイク置き場
他初期費用
看板使用料/月 5500.0円     

設備詳細情報

キッチン
バス・トイレ
  • バストイレ別
  • トイレ2ヶ所
  • トイレ専用
住空間
  • 最上階
  • 1フロア1住戸
  • 角部屋
  • 東南向き
  • エアコン2台
  • ビルトインエアコン
設備・サービス
  • エレベーター
特 徴
  • 陽当り良好
  • 駅まで平坦
  • 駅前
  • 駅徒歩5分以内
  • 眺望良好
条件・その他  水道:公営 / 排水:下水 / 保証人代行:必加入
コメント 瀬田駅徒歩3分☆飲食店不可☆事務所・教室等に最適☆1号線沿いで視認性◎
備 考 火災保険加入要
保証会社:賃料総額の100%/初回 賃料総額の10%/1年毎
保証金返還率 3年未満0% 6年未満50% 9年未満70% 9年以上80%

学区情報

小学校区 大津市立瀬田北小学校
(滋賀県大津市)
中学校区 瀬田北中学校
(滋賀県大津市)
情報更新日:2026年05月19日 次回更新予定日:2026年06月02日
※各種情報と差異がある場合は現況優先となります
※物件情報の学区情報について
当サイト物件情報に記載されております通学区域(学区)情報は、国土数値情報ダウンロードサービスが提供する小学校区データ【2016年度】及び中学校区データ【2016年度】を元に加工したものですので、記載情報が現在の学区域と異なる場合がございます。国土数値情報ダウンロードサービスのWEBサイト上で記述通り、データは必ずしも正確とは言えません。また、通学区域(学区)は毎年見直しの対象となりますので、そちらを踏まえ学区情報は参考としてご活用下さい。

近隣スポット情報

こちらの物件の空室状況

所在階 / 部屋番号 賃料 共益費 / 管理費 間取り 専有面積 敷金 礼金 お気に入り 物件詳細
4F 38.5万円 44,000円 / - その他 224.41m2 0ヶ月 0ヶ月 お気に入り 物件詳細
4F 38.5万円 44,000円 / - その他 224.41m2 0ヶ月 0ヶ月 お気に入り 物件詳細
4F 38.5万円 44,000円 / - その他 224.41m2 0ヶ月 0ヶ月 お気に入り 物件詳細
4F 38.5万円 44,000円 / - その他 224.41m2 0ヶ月 0ヶ月 お気に入り 物件詳細
077-565-7778
センチュリー21sublime南草津駅前店
お問い合わせNO:RHS-170302-8831c

この物件に似た物件をチェック!


閲覧した物件の履歴

閲覧した物件の一覧を見る

最近検索した条件一覧



気になったら今すぐ!カンタンお問合せ



お問合せ内容必須
【備考欄】
希望条件・来店希望日・その他質問がございましたらご記入ください。
お客様情報
お名前必須
連絡先必須


※ご記入いただいたメールアドレス宛てに、お問合せ内容の確認メールをお送りいたします。
※Yahoo!メールなどのフリーメールをご利用の場合、迷惑メールフォルダに入る場合があります。
 迷惑メールのフォルダ・設定等をご確認下さい。
メールアドレス
電話番号
FAX(任意)



プライバシーポリシーを必ずご確認ください。内容に同意の上、確認画面へお進みください。

 


▲ページのTOPへ戻る


お問合せはこちら

センチュリー21sublime南草津駅前店 077-565-7778