竹村ビル 守山のその他賃貸店舗(建物一部)!|センチュリー21sublime

SHARE!

Instagram TikTok line Facebook
来店予約 ネットで
来店予約
TOPページ
物件検索
守山市の賃貸情報一覧
守山の賃貸情報一覧
竹村ビル 守山のその他賃貸店舗(建物一部)!

竹村ビル 守山のその他賃貸店舗(建物一部) 

  • 69.4716万円 / 管理費: - / 共益費:173,679円
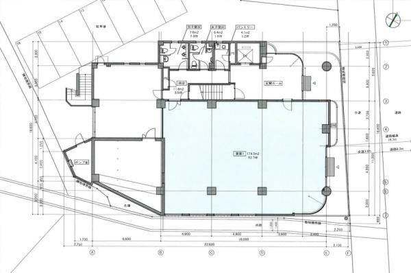
  • 間取り:その他 / 専有面積:174m2
  • 敷金:0ヶ月 / 礼金:0ヶ月 / 保証金:12ヶ月 / 敷引:0ヶ月
【建物外観】 
  • 【建物外観】 
  • 【間取】 

【竹村ビルについてスタッフからのイチオシポイント!】

守山駅徒歩6分大通り沿いの1階テナント!業種ご相談ください
竹村ビルは滋賀県守山市守山1丁目【JR東海道・山陽本線 守山駅徒歩6分】にあるその他賃貸店舗(建物一部)です。
1985年11月築の4階建ての店舗(建物一部)で、お部屋は4階建ての1階部分です。
物件の広さは174m2で人気のその他です。
※お部屋のもっと詳しい内容や入居時期、諸条件のご相談など、ホームページには掲載が間に合わず載せきれていない情報もございます。
気になることが御座いましたらお気軽にメールにてお問い合わせください。
077-565-7778
センチュリー21sublime南草津駅前店
お問い合わせNO:RHS-170302-7892c

物件基本情報

所在地 滋賀県守山市守山1丁目   周辺MAP
交通 JR東海道・山陽本線 「守山駅」 徒歩6分
JR東海道・山陽本線 「栗東駅」 徒歩30分
JR東海道・山陽本線 「野洲駅」 徒歩46分
JR東海道・山陽本線 「草津駅」 徒歩61分
種別 / 構造 店舗(建物一部) / RC造(鉄筋コンクリート造) 主要採光面 - 所在階 / 階数 1階 / 4階
築年月 1985年11月  間取り その他( - ) 専有面積 174m2

物件詳細情報

損保 更新料 鍵交換代 -
駐車場 あり11,000円 近隣駐車場   契約期間
借家区分
2年 -
現況 空家 入居可能日 相談 取引態様 媒介
保証人代行会社 仲介手数料 バイク置き場
他初期費用
     

設備詳細情報

キッチン
バス・トイレ
  • トイレ2ヶ所
住空間
  • エアコン
設備・サービス
特 徴
  • 駅まで平坦
  • 駅徒歩10分以内
条件・その他  
コメント 守山駅徒歩6分大通り沿いの1階テナント!業種ご相談ください
備 考 保証会社、火災保険加入要 

学区情報

小学校区 守山市立守山小学校
(滋賀県守山市)
中学校区 守山南中学校
(滋賀県守山市)
情報更新日:2026年01月20日 次回更新予定日:2026年02月03日
※各種情報と差異がある場合は現況優先となります
※物件情報の学区情報について
当サイト物件情報に記載されております通学区域(学区)情報は、国土数値情報ダウンロードサービスが提供する小学校区データ【2016年度】及び中学校区データ【2016年度】を元に加工したものですので、記載情報が現在の学区域と異なる場合がございます。国土数値情報ダウンロードサービスのWEBサイト上で記述通り、データは必ずしも正確とは言えません。また、通学区域(学区)は毎年見直しの対象となりますので、そちらを踏まえ学区情報は参考としてご活用下さい。

近隣スポット情報

こちらの物件の空室状況

所在階 / 部屋番号 賃料 共益費 / 管理費 間取り 専有面積 敷金 礼金 お気に入り 物件詳細
69.4716万円 173,679円 / - その他 174m2 0ヶ月 0ヶ月 お気に入り 物件詳細
69.4716万円 173,679円 / - その他 174m2 0ヶ月 0ヶ月 お気に入り 物件詳細
077-565-7778
センチュリー21sublime南草津駅前店
お問い合わせNO:RHS-170302-7892c

この物件に似た物件をチェック!


閲覧した物件の履歴

閲覧した物件の一覧を見る

最近検索した条件一覧



気になったら今すぐ!カンタンお問合せ



お問合せ内容必須
【備考欄】
希望条件・来店希望日・その他質問がございましたらご記入ください。
お客様情報
お名前必須
連絡先必須


※ご記入いただいたメールアドレス宛てに、お問合せ内容の確認メールをお送りいたします。
※Yahoo!メールなどのフリーメールをご利用の場合、迷惑メールフォルダに入る場合があります。
 迷惑メールのフォルダ・設定等をご確認下さい。
メールアドレス
電話番号
FAX(任意)



プライバシーポリシーを必ずご確認ください。内容に同意の上、確認画面へお進みください。

 


▲ページのTOPへ戻る


お問合せはこちら

センチュリー21sublime南草津駅前店 077-565-7778