京正ビル 三井寺のその他賃貸テナント!|センチュリー21sublime

SHARE!

Instagram TikTok line Facebook
来店予約 ネットで
来店予約
TOPページ
物件検索
大津市の賃貸情報一覧
三井寺の賃貸情報一覧
京正ビル 三井寺のその他賃貸テナント!

京正ビル 三井寺のその他賃貸テナント 

  • 9.9万円 / 管理費: - / 共益費:-
  • 間取り:その他 / 専有面積:50.04m2
  • 敷金:29.7万円 / 礼金:9.9万円 / 保証金:0ヶ月 / 敷引:0ヶ月
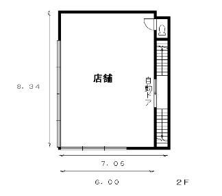
【間取】 
  • 【間取】 

【京正ビルについてスタッフからのイチオシポイント!】

軽飲食可(カフェなど)・事務所・整骨院などにおススメ☆内見可能
京正ビルは滋賀県大津市長等2丁目【京阪石山坂本線 三井寺駅徒歩5分】にあるその他賃貸テナントです。
1986年5月築の3階建てのテナントで、お部屋は3階建ての2階部分です。
物件の広さは50.04m2で人気のその他です。
※お部屋のもっと詳しい内容や入居時期、諸条件のご相談など、ホームページには掲載が間に合わず載せきれていない情報もございます。
気になることが御座いましたらお気軽にメールにてお問い合わせください。
077-565-7778
センチュリー21sublime南草津駅前店
お問い合わせNO:RHS-170302-7879c

物件基本情報

所在地 滋賀県大津市長等2丁目   周辺MAP
交通 京阪石山坂本線 「三井寺駅」 徒歩5分
JR東海道・山陽本線 「大津駅」 徒歩14分
JR湖西線 「大津京駅」 徒歩25分
JR東海道・山陽本線 「膳所駅」 徒歩30分
種別 / 構造 テナント / S造(鉄骨造) 主要採光面 - 所在階 / 階数 2階 / 3階
築年月 1986年5月  間取り その他( - ) 専有面積 50.04m2

物件詳細情報

損保 更新料 鍵交換代 -
駐車場 なし 近隣駐車場   契約期間
借家区分
5年 -
現況 空家 入居可能日 即入居可 取引態様 媒介
保証人代行会社 その他 100.0% 初回:100% 仲介手数料 バイク置き場
他初期費用
     

設備詳細情報

キッチン
バス・トイレ
  • バストイレ別
  • トイレ専用
  • シャッター雨戸
住空間
  • 角部屋
  • ロフト
設備・サービス
特 徴
  • 閑静な住宅地
  • 緑豊かな住宅地
  • 眺望良好
条件・その他  ガス:都市 / 保証人代行:必加入
コメント 軽飲食可(カフェなど)・事務所・整骨院などにおススメ☆内見可能
備 考 火災保険・保証会社加入要

学区情報

小学校区 大津市立長等小学校
(滋賀県大津市)
中学校区 皇子山中学校
(滋賀県大津市)
情報更新日:2026年03月06日 次回更新予定日:2026年03月20日
※各種情報と差異がある場合は現況優先となります
※物件情報の学区情報について
当サイト物件情報に記載されております通学区域(学区)情報は、国土数値情報ダウンロードサービスが提供する小学校区データ【2016年度】及び中学校区データ【2016年度】を元に加工したものですので、記載情報が現在の学区域と異なる場合がございます。国土数値情報ダウンロードサービスのWEBサイト上で記述通り、データは必ずしも正確とは言えません。また、通学区域(学区)は毎年見直しの対象となりますので、そちらを踏まえ学区情報は参考としてご活用下さい。

近隣スポット情報

こちらの物件の空室状況

所在階 / 部屋番号 賃料 共益費 / 管理費 間取り 専有面積 敷金 礼金 お気に入り 物件詳細
2F 9.9万円 - / - その他 50.04m2 29.7万円 9.9万円 お気に入り 物件詳細
2F 9.9万円 - / - その他 50.04m2 29.7万円 9.9万円 お気に入り 物件詳細
077-565-7778
センチュリー21sublime南草津駅前店
お問い合わせNO:RHS-170302-7879c

この物件に似た物件をチェック!


閲覧した物件の履歴

閲覧した物件の一覧を見る

最近検索した条件一覧



気になったら今すぐ!カンタンお問合せ



お問合せ内容必須
【備考欄】
希望条件・来店希望日・その他質問がございましたらご記入ください。
お客様情報
お名前必須
連絡先必須


※ご記入いただいたメールアドレス宛てに、お問合せ内容の確認メールをお送りいたします。
※Yahoo!メールなどのフリーメールをご利用の場合、迷惑メールフォルダに入る場合があります。
 迷惑メールのフォルダ・設定等をご確認下さい。
メールアドレス
電話番号
FAX(任意)



プライバシーポリシーを必ずご確認ください。内容に同意の上、確認画面へお進みください。

 


▲ページのTOPへ戻る


お問合せはこちら

センチュリー21sublime南草津駅前店 077-565-7778