青山3丁目貸家 南草津の4LDK賃貸一戸建て!|センチュリー21sublime

SHARE!

Instagram TikTok line Facebook
来店予約 ネットで
来店予約
TOPページ
物件検索
大津市の賃貸情報一覧
南草津の賃貸情報一覧
青山3丁目貸家 南草津の4LDK賃貸一戸建て!

青山3丁目貸家 南草津の4LDK賃貸一戸建て 

  • 12万円 / 管理費: - / 共益費:-
  • 間取り:4LDK / 専有面積:121.73m2
  • 敷金:1ヶ月 / 礼金:1ヶ月 / 保証金:0ヶ月 / 敷引:0ヶ月
【建物外観】 
  • 【建物外観】 
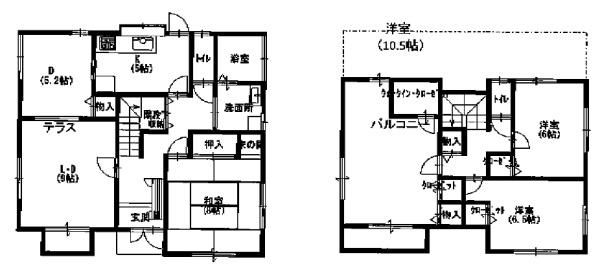
  • 【間取】 

【青山3丁目貸家についてスタッフからのイチオシポイント!】

ペット不可☆2台駐車可☆室内内見可☆日当たり良好
青山3丁目貸家は滋賀県大津市青山3丁目【JR東海道・山陽本線 南草津駅徒歩53分/青山1丁目 バス乗車時間13分  停歩4分】にある4LDK賃貸一戸建てです。
1996年5月築の2階建ての一戸建てで、お部屋は2階建ての-部分です。
物件の広さは121.73m2で人気の4LDKです。
※お部屋のもっと詳しい内容や入居時期、諸条件のご相談など、ホームページには掲載が間に合わず載せきれていない情報もございます。
気になることが御座いましたらお気軽にメールにてお問い合わせください。
077-516-1877
センチュリー21sublime草津駅前店
お問い合わせNO:RHS-170301-31060c

物件基本情報

所在地 滋賀県大津市青山3丁目   周辺MAP
交通 JR東海道・山陽本線 「南草津駅」 徒歩53分/青山1丁目 バス乗車時間13分  停歩4分
種別 / 構造 一戸建て / 木造 主要採光面 所在階 / 階数 - / 2階
築年月 1996年5月  間取り 4LDK( LDK19.2畳/和室8畳/洋室6畳/洋室6.5畳 ) 専有面積 121.73m2

物件詳細情報

損保 要 19,000円/2年  更新料 あり 1ヶ月 鍵交換代 -
駐車場 有 無料 近隣駐車場   契約期間
借家区分
2年 -
現況 空き予定 入居可能日 2026年4月上旬 取引態様 媒介
保証人代行会社 日本セーフティー 50.0% 初回:賃料等総額の50% 1年毎:13000円 仲介手数料 バイク置き場
他初期費用
     

設備詳細情報

キッチン
  • システムキッチン
バス・トイレ
  • バストイレ別
  • 脱衣所
  • 洗面所独立
  • 洗面台
  • 洗面所
  • バス専用
  • トイレ専用
住空間
  • 3面採光
  • バルコニー
  • 南面リビング
  • 洗面所に窓
  • 南向き
設備・サービス
  • 駐車場2台無料
  • 駐車並列2台
特 徴
  • 陽当り良好
  • 閑静な住宅地
  • 眺望良好
  • 通風良好
条件・その他  ガス:都市 / ペット:不可 / 保証人代行:必加入
コメント ペット不可☆2台駐車可☆室内内見可☆日当たり良好
備 考 火災保険19000円/2年
保証会社加入要
室内清掃費121000円/退去時
YVアンテナなし

学区情報

小学校区 大津市立青山小学校
(滋賀県大津市)
中学校区 青山中学校
(滋賀県大津市)
情報更新日:2026年02月08日 次回更新予定日:2026年02月22日
※各種情報と差異がある場合は現況優先となります
※物件情報の学区情報について
当サイト物件情報に記載されております通学区域(学区)情報は、国土数値情報ダウンロードサービスが提供する小学校区データ【2016年度】及び中学校区データ【2016年度】を元に加工したものですので、記載情報が現在の学区域と異なる場合がございます。国土数値情報ダウンロードサービスのWEBサイト上で記述通り、データは必ずしも正確とは言えません。また、通学区域(学区)は毎年見直しの対象となりますので、そちらを踏まえ学区情報は参考としてご活用下さい。

近隣スポット情報

こちらの物件の空室状況

所在階 / 部屋番号 賃料 共益費 / 管理費 間取り 専有面積 敷金 礼金 お気に入り 物件詳細
1 12万円 - / - 4LDK 121.73m2 1ヶ月 1ヶ月 お気に入り 物件詳細
077-516-1877
センチュリー21sublime草津駅前店
お問い合わせNO:RHS-170301-31060c

この物件に似た物件をチェック!


閲覧した物件の履歴

閲覧した物件の一覧を見る

最近検索した条件一覧



気になったら今すぐ!カンタンお問合せ



お問合せ内容必須
【備考欄】
希望条件・来店希望日・その他質問がございましたらご記入ください。
お客様情報
お名前必須
連絡先必須


※ご記入いただいたメールアドレス宛てに、お問合せ内容の確認メールをお送りいたします。
※Yahoo!メールなどのフリーメールをご利用の場合、迷惑メールフォルダに入る場合があります。
 迷惑メールのフォルダ・設定等をご確認下さい。
メールアドレス
電話番号
FAX(任意)



プライバシーポリシーを必ずご確認ください。内容に同意の上、確認画面へお進みください。

 


▲ページのTOPへ戻る


お問合せはこちら

センチュリー21sublime草津駅前店 077-516-1877