KMG omi 近江八幡のその他賃貸テナント!|センチュリー21sublime

SHARE!

Instagram TikTok line Facebook
来店予約 ネットで
来店予約
TOPページ
物件検索
近江八幡市の賃貸情報一覧
近江八幡の賃貸情報一覧
KMG omi 近江八幡のその他賃貸テナント!

KMG omi 近江八幡のその他賃貸テナント 

  • 27.5万円 / 管理費: - / 共益費:22,000円
  • 間取り:その他 / 専有面積:134.97m2
  • 敷金:0ヶ月 / 礼金:0ヶ月 / 保証金:75万円 / 敷引:0ヶ月
【建物外観】 
  • 【建物外観】 
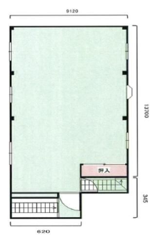
  • 【間取】 

【KMG omiについてスタッフからのイチオシポイント!】

近江八幡駅徒歩1分☆内装スケルトン渡し☆事務所や飲食店等業種はご相談ください
KMG omiは滋賀県近江八幡市鷹飼町【JR東海道・山陽本線 近江八幡駅徒歩3分】にあるその他賃貸テナントです。
1984年12月築の2階建てのテナントで、お部屋は2階建ての2階部分です。
物件の広さは134.97m2で人気のその他です。
※お部屋のもっと詳しい内容や入居時期、諸条件のご相談など、ホームページには掲載が間に合わず載せきれていない情報もございます。
気になることが御座いましたらお気軽にメールにてお問い合わせください。
077-518-8315
センチュリー21sublime守山駅前店
お問い合わせNO:RHS-170304-433c

物件基本情報

所在地 滋賀県近江八幡市鷹飼町   周辺MAP
交通 JR東海道・山陽本線 「近江八幡駅」 徒歩3分
近江鉄道八日市線 「近江八幡駅」 徒歩3分
JR東海道・山陽本線 「安土駅」 徒歩49分
JR東海道・山陽本線 「篠原駅」 徒歩56分
種別 / 構造 テナント / S造(鉄骨造) 主要採光面 - 所在階 / 階数 2階 / 2階
築年月 1984年12月  間取り その他( - ) 専有面積 134.97m2

物件詳細情報

損保 更新料 鍵交換代 -
駐車場 なし 近隣駐車場   契約期間
借家区分
3年 -
現況 空家 入居可能日 即入居可 取引態様 媒介
保証人代行会社 仲介手数料 バイク置き場
他初期費用
     

設備詳細情報

キッチン
バス・トイレ
住空間
  • 最上階
設備・サービス
特 徴
  • 閑静な住宅地
  • 2駅利用可
  • 駅まで平坦
  • 駅徒歩5分以内
  • 眺望良好
条件・その他  
コメント 近江八幡駅徒歩1分☆内装スケルトン渡し☆事務所や飲食店等業種はご相談ください
備 考 火災保険加入要・保証会社加入要
保証金返還率:3年未満20% 10年未満70% 10年以上100%

学区情報

小学校区 近江八幡市立金田小学校
(滋賀県近江八幡市)
中学校区 八幡東中学校
(滋賀県近江八幡市)
情報更新日:2026年02月07日 次回更新予定日:2026年02月21日
※各種情報と差異がある場合は現況優先となります
※物件情報の学区情報について
当サイト物件情報に記載されております通学区域(学区)情報は、国土数値情報ダウンロードサービスが提供する小学校区データ【2016年度】及び中学校区データ【2016年度】を元に加工したものですので、記載情報が現在の学区域と異なる場合がございます。国土数値情報ダウンロードサービスのWEBサイト上で記述通り、データは必ずしも正確とは言えません。また、通学区域(学区)は毎年見直しの対象となりますので、そちらを踏まえ学区情報は参考としてご活用下さい。

近隣スポット情報

こちらの物件の空室状況

所在階 / 部屋番号 賃料 共益費 / 管理費 間取り 専有面積 敷金 礼金 お気に入り 物件詳細
106 18.7万円 22,000円 / - その他 60.82m2 0ヶ月 0ヶ月 お気に入り 物件詳細
107 18.7万円 22,000円 / - その他 60.82m2 0ヶ月 0ヶ月 お気に入り 物件詳細
106 18.7万円 22,000円 / - その他 60.82m2 0ヶ月 0ヶ月 お気に入り 物件詳細
107 18.7万円 22,000円 / - その他 60.82m2 0ヶ月 0ヶ月 お気に入り 物件詳細
106 18.7万円 22,000円 / - その他 60.82m2 0ヶ月 0ヶ月 お気に入り 物件詳細
107 18.7万円 22,000円 / - その他 60.82m2 0ヶ月 0ヶ月 お気に入り 物件詳細
205 27.5万円 22,000円 / - その他 134.97m2 0ヶ月 0ヶ月 お気に入り 物件詳細
205 14.3万円 22,000円 / - その他 45.61m2 0ヶ月 0ヶ月 お気に入り 物件詳細
206 14.3万円 22,000円 / - その他 45.61m2 0ヶ月 0ヶ月 お気に入り 物件詳細
205 14.3万円 22,000円 / - その他 45.61m2 0ヶ月 0ヶ月 お気に入り 物件詳細
206 14.3万円 22,000円 / - その他 45.61m2 0ヶ月 0ヶ月 お気に入り 物件詳細
205 27.5万円 22,000円 / - その他 134.97m2 0ヶ月 0ヶ月 お気に入り 物件詳細
205 14.3万円 22,000円 / - その他 45.61m2 0ヶ月 0ヶ月 お気に入り 物件詳細
206 14.3万円 22,000円 / - その他 45.61m2 0ヶ月 0ヶ月 お気に入り 物件詳細
205 27.5万円 22,000円 / - その他 134.97m2 0ヶ月 0ヶ月 お気に入り 物件詳細
077-518-8315
センチュリー21sublime守山駅前店
お問い合わせNO:RHS-170304-433c

この物件に似た物件をチェック!


閲覧した物件の履歴

閲覧した物件の一覧を見る

最近検索した条件一覧



気になったら今すぐ!カンタンお問合せ



お問合せ内容必須
【備考欄】
希望条件・来店希望日・その他質問がございましたらご記入ください。
お客様情報
お名前必須
連絡先必須


※ご記入いただいたメールアドレス宛てに、お問合せ内容の確認メールをお送りいたします。
※Yahoo!メールなどのフリーメールをご利用の場合、迷惑メールフォルダに入る場合があります。
 迷惑メールのフォルダ・設定等をご確認下さい。
メールアドレス
電話番号
FAX(任意)



プライバシーポリシーを必ずご確認ください。内容に同意の上、確認画面へお進みください。

 


▲ページのTOPへ戻る


お問合せはこちら

センチュリー21sublime守山駅前店 077-518-8315